Appartement à perlé
Appartement | ID DU BIEN : 603
Description
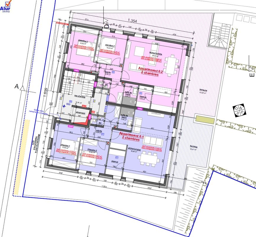
A vendre à Perlé ( commune de Rambrouch), 17 garnd-rue, appartement 0.2 d'une superficie de 78,39 m², situé au rez-de-chaussée d'une résidence à construire.
Comprenant un grand séjour-cuisine ouverte, 2 chambres, 1 salle de douche, wc, remise, terrasse de 62,26 m² et jardin privatif.
Passeport énergétique A-B, chauffage au sol par pompe à chaleur air-eau, châssis PVC triple vitrage.VMC
Très bonne situation au calme dans le charmant village de Perlé, proche de la frontière belge et de la N4 vers Arlon-Bastogne
Prix : 687.120€ HTVA ( TVA à 3% ou 17%)
Caractéristiques
Détails généraux
Confort et équipement
Compostition
Prix : 687.120 €
17 Grand-rue | 8826 perlé | Luxembourg
VOTRE CONSEILLERE
Virginie HOLTZMACHER
7A, rue de la Hardt 6630 MARTELANGE
Ce bien vous intéresse ?
Remplissez le formulaire ci dessous pour avoir de plus amples informations.
Autre bien intéressant
Appartement à perlé
A vendre à Perlé ( commune de Rambrouch), 17, grand-rue, appartement duplex...
434.540 €
69.09 m2 1 -









