Appartement à perlé
Appartement | ID DU BIEN : 604
Description
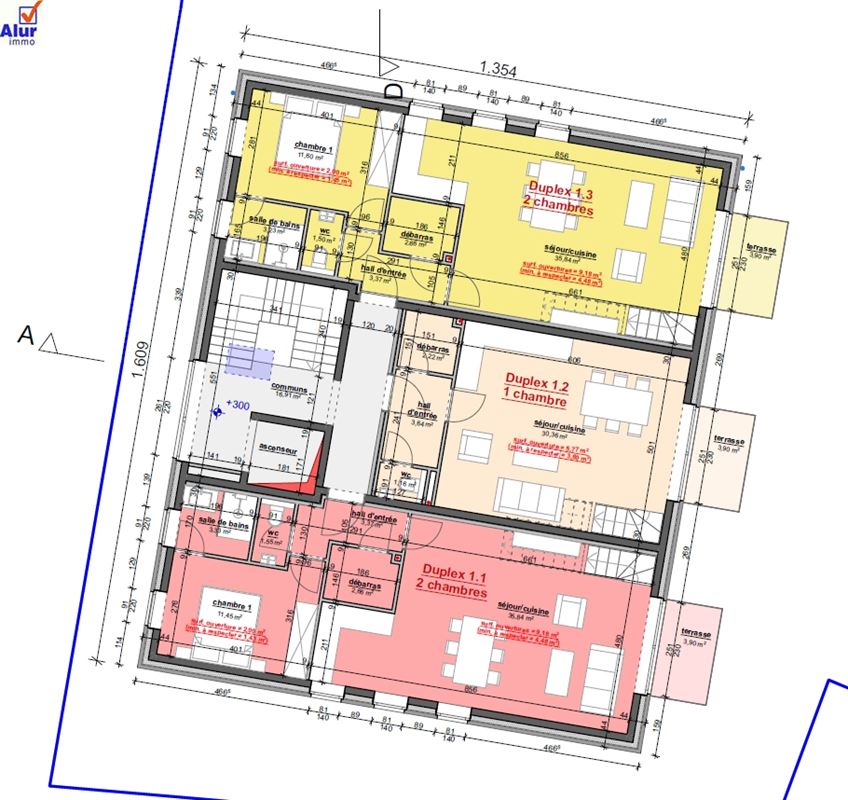
A vendre à Perlé ( commune de Rambrouch) 17, grand-rue, appartement duplex 1.1, d'une superficie de 90,26 m² situé au 1er et 2e étage d'une résidence à construire.
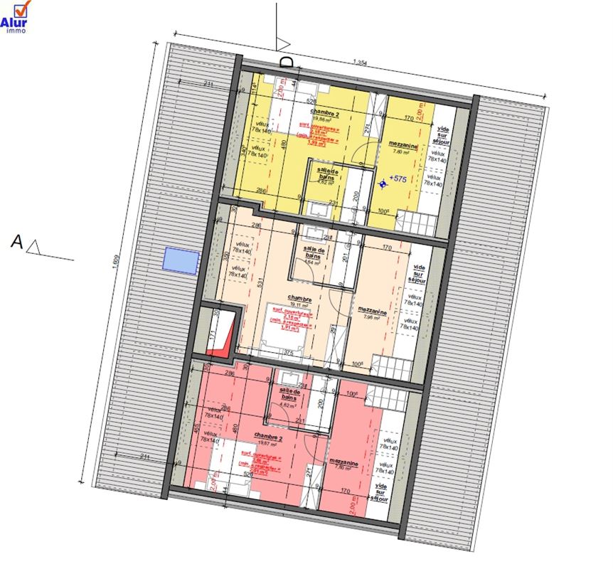
Comprenant,au 1er étage un grand séjour/ cuisine ouverte, 1 salle de douche, 1 chambre, 1 débarras, wc et balcon ; au 2e étage : 1 chambre, 1 mezzanine, 1 salle de douche.
Passeport énergétique A-B, chauffage au sol par pompe à chaleur air-eau, châssis PVC triple vitrage.VMC
Très bonne situation au calme dans le charmant village de Perlé et proche de la frontière belge et de la N4 vers Arlon ou Bastogne.
Prix : 561.560 €HTVA ( TVA à 3% ou 17%)
Caractéristiques
Détails généraux
Confort et équipement
Compostition
Prix : 561.560 €
17 grand-rue | 8826 perlé | Luxembourg
VOTRE CONSEILLERE
Virginie HOLTZMACHER
7A, rue de la Hardt 6630 MARTELANGE
Ce bien vous intéresse ?
Remplissez le formulaire ci dessous pour avoir de plus amples informations.
Autre bien intéressant
Appartement à perlé
A vendre à Perlé ( commune de Rambrouch), 17, grand-rue, appartement duplex...
561.680 €
90.28 m2 2 2








