Appartement à perlé
Appartement | ID DU BIEN : 605
Description
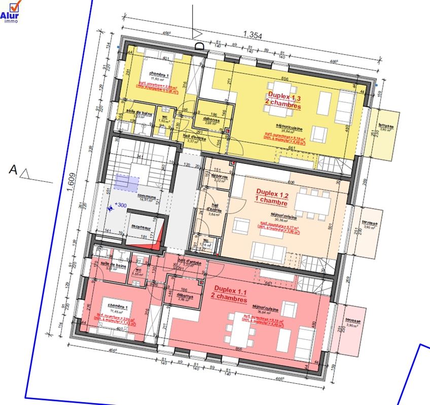
A vendre à Perlé ( commune de Rambrouch), 17, grand-rue, appartement duplex 1.2 d'une superficie de 69,09 m² situé au 1er et 2e étage d'une résidence à construire.
Comprenant au 1er étage : 1 séjour/cuisine ouverte, 1 débarras, wc, balcon ; au 2e étage :1 chambre, 1 salle de douche et 1 mezzanine.
Passeport énergétique A-B, chauffage au sol par pompe à chaleur air-eau, châssis PVC triple vitrage.VMC
Très bonne situation au calme dans le charmant village de Perlé, proche de la N4 vers Arlon ou Bastogne.
Prix : 434.540 € HTVA ( TVA 3% ou 17%)
Caractéristiques
Détails généraux
Confort et équipement
Compostition
Prix : 434.540 €
17 Grand-rue | 8826 perlé | Luxembourg
VOTRE CONSEILLERE
Virginie HOLTZMACHER
7A, rue de la Hardt 6630 MARTELANGE
Ce bien vous intéresse ?
Remplissez le formulaire ci dessous pour avoir de plus amples informations.
Autre bien intéressant
Appartement à perlé
A vendre à Perlé ( commune de Rambrouch), 17 Gand-rue, appartement 0.1,...
596.550 €
82.02 m2 2 1








